Condominiums
There are 19 buildings with a total of 171 units in the Beach Villa Condos collection. Each building contains 9 units.
These homes feature five distinct models, available in both single-story and two-story designs. The models are easily identified by the unit’s address ending digits, as each model corresponds to specific endings for consistent design recognition.
Addresses Ending In:
- 1 & 9 – Avignon Model
- 2 & 7 – Capri Model
- 3 & 8 – Carrara Model
- 4 – Domenico Model
- 5 & 6 – Belvedere Model
This collection provides a variety of options to suit different preferences for ocean, lakefront and pool views.
Avignon
Units 1/9

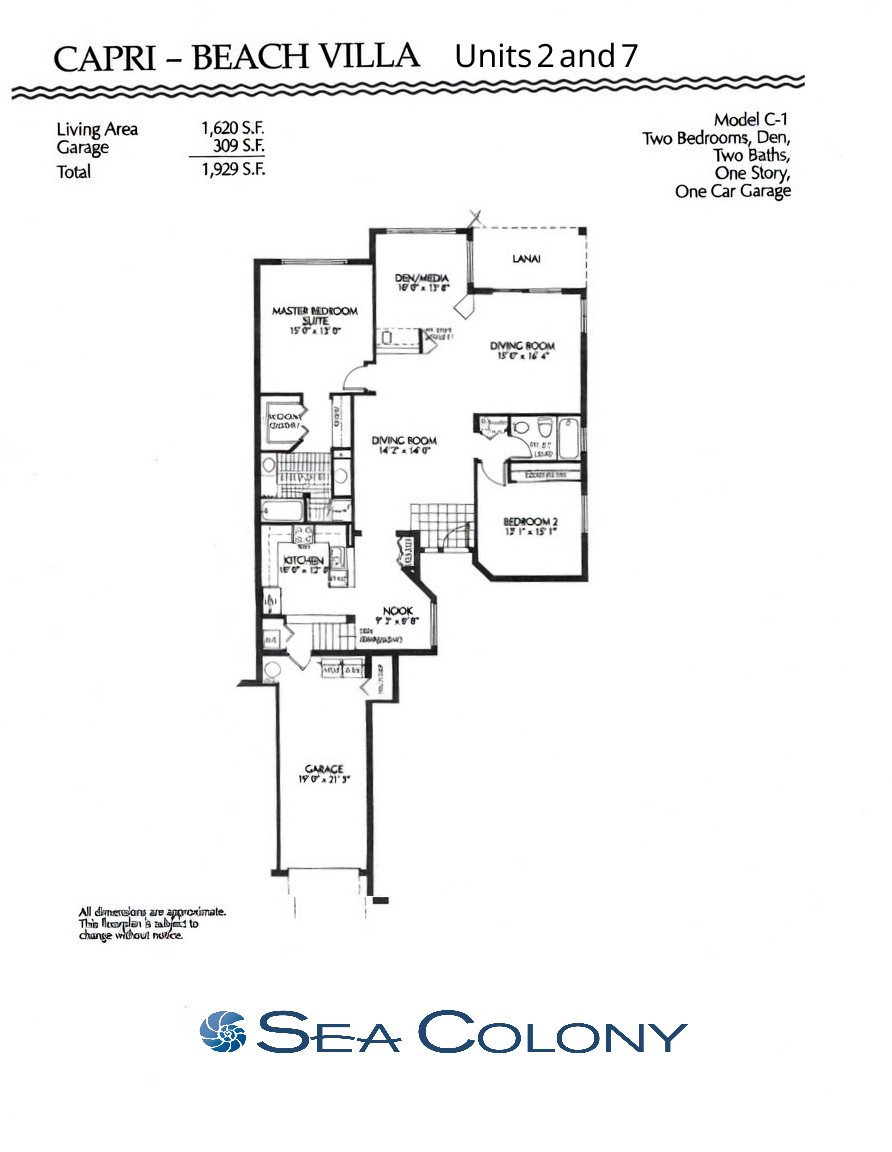
Capri
Units 2/7

Carrara
Units 3/8

Domenico
Unit 4

Belvedere
Units 5/6

Lake Homes
There are 86 lake homes in total, all designed as two-story lake townhomes featuring a two-car garage.
These homes come in four distinct models:
- Ensenada and FiJi models – these are situated directly on the lake, offering prime waterfront living.
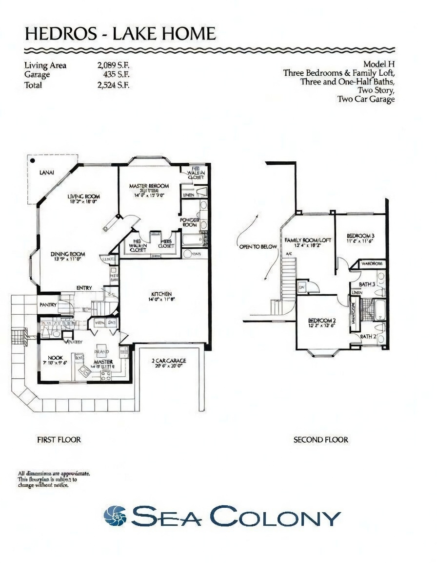
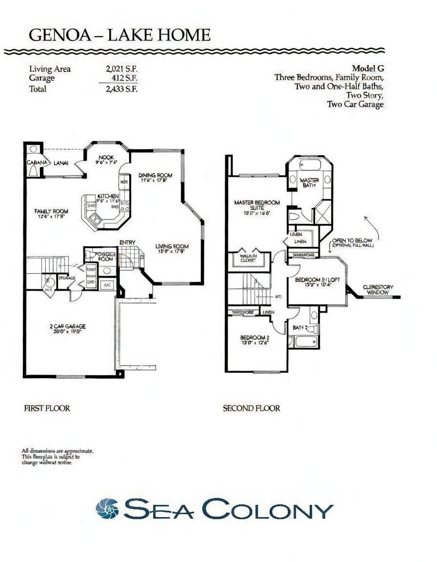
- Hedros and Genoa models – these are not located on the lake
This collection provides a variety of options to suit different preferences for lakefront access and views.
ENSENADA

FIJI

HEDROS

GENOA

